兰州新区蔚蓝科技有限公司兰州新区高精铝板带箔项目
来源: 兰州新区自然资源和规划局
时间: 2026/04/22/ 09:11
字号:[大][中][小]
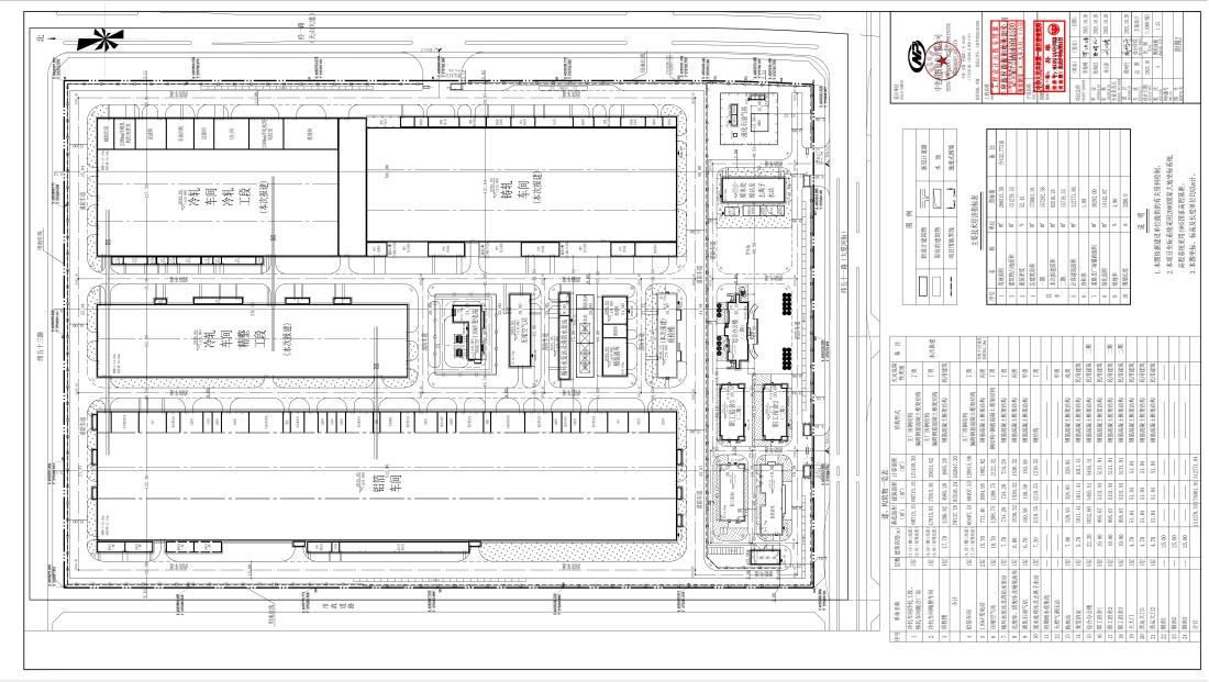
建设单位名称:兰州新区蔚蓝科技有限公司
审批事项名称:建筑工程设计方案总平面图
项目名称:兰州新区高精铝板带箔项目
建设用地面积:约432.77亩
建筑面积:本次总建筑面积83516.24㎡,均为地上。
项目地址:兰州新区纬五十三路以南、FD27#路以东、经一路以西、纬五十一路以北区域。
公示日期:2026年04月22日—2026年04月28日
为保障利害关系人的合法权益,现将项目建筑工程设计方案总平面图予以公示,并征求利害关系人意见。凡与本地块具有重大利害关系的,可在公示期内向我局提出书面异议。利害关系人要求听证的,应当在公告发布之日起5个工作日内以书面形式提出听证申请,并提供身份证明、房产证明等证明规划内容直接涉及其重大利害关系的材料。规定期限内未提交前述材料的,视为放弃。公示期满无异议,异议不成立或未要求听证的,视为无意见。
兰州新区自然资源和规划局联系电话:0931—6502207



个人中心
退出登录




